家づくりの流れ ~敷地調査・プランニングについて~
敷地を訪問する理由は、主に次の2つの理由があります。
- 土地の環境を把握するため 隣接する道路の幅や敷地内の水道管の直径、敷地の高低差などを正確に調査することで実際に住まわれる際に問題となる点をあらかじめ見つけ出すことができます。
- 周囲の環境を把握するため 日差しの当たり方や風通し、音の大きい箇所や隣接するお家との距離など暮らしやすさに関係する環境の調査を行います。 今後、長く住むお家なので皆さまが不便に感じないようしっかり見ていきます。
これらで見つけた問題点から対応策を検討し、費用を算出いたします。

建ぺい率、道路後退、容積率、斜線制限などお家には守るべき法律や規則が豊富にあります。
それらがキチンと順守できているか、しっかり確認していきます。


長く安心して住むうえで欠かせない地盤調査。
近隣データを解析して、現在の状態を踏まえ、宅地になる前はどのように使用されていた土地だったのかも調査していきます。
また、その土地のみならず地震や台風のときの近隣の状況もあわせて調査します。
本調査は、ご契約後にスウェーデン式サウンディング試験で調査していきます。

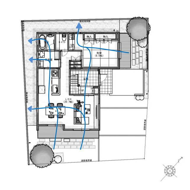
現地調査で得たデータをもとに敷地計画をたてていきます。
この時、考慮するポイントは以下のようになっています。
● 換気扇、トイレ位置を考えた音・におい対策
● 景観や空き地などの将来の環境変化への対策
● 道路の交通量をふまえた安全・騒音・視線対策
● 風の通りはどうか?
● 日当たりはどうか?
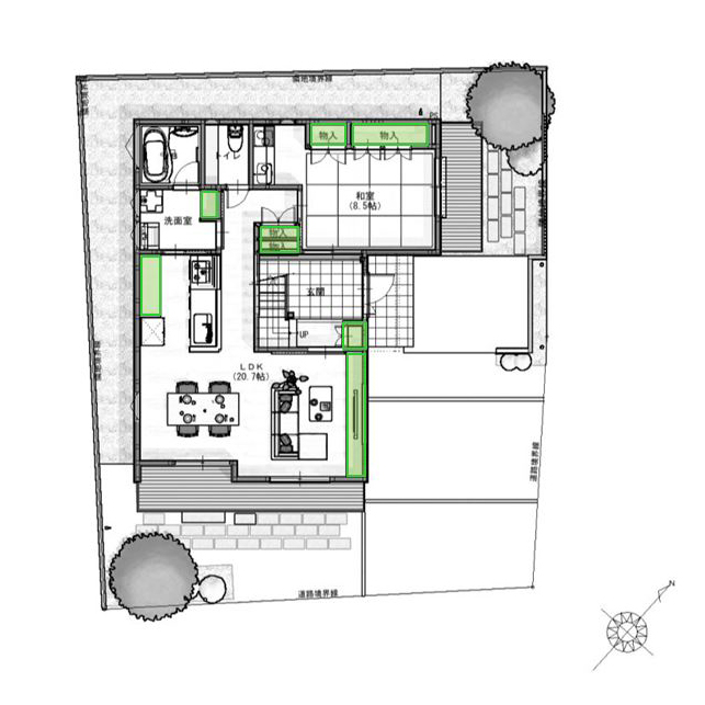
● 収納計画
収納は、広ければ良いというものではありません。
いつのまにかどこに何があるかわからなくなってしまい、そこに何がしまってあったか忘れてしまうということはよくあります。
シューズクローク・コート掛け・パントリー・掃除用具入れなど、「適収適所」に配置することにより使い終わった後の片付けの導線や時間も短くなります。

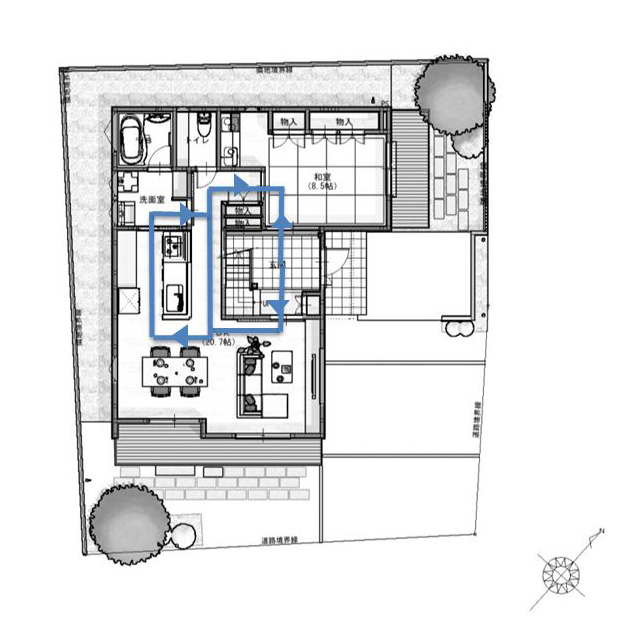
ゾーニングとは、空間を機能や用途別にまとめて、それぞれに必要な空間の大きさを設定しながら、相互の関連性を考えて空間の中での位置関係を決定する設計手法です。
パターンをシュミレーションしながら、お客様にとって最適な空間の配置を決定していきます。

ゾーニングで空間の配置を決定したら、基本プランを設定していきます。
この時、わかりやすくご提案させていただくためにパースもご用意いたします。
お家のプランを実際に見ていただくことで、具体的にイメージしていただけると思います。






