中国分4丁目 5,350万円 売主物件
おかげさまでご成約となりました
◆DAISHUプロデュース 建売物件完成!!◆

勾配天井の2階リビングと家事ラクの家




| 販売価格 | 5,350万円(税込) |
| 交通 | 北総線「矢切」駅 徒歩15分 |
| JR総武線「市川」駅バス9分 商大付属高校下車徒歩5分 |
物件概要
| 住所 | 千葉県市川市中国分4-7-14(住居表示) |
| 千葉県市川市中国分4-700-4(地番) | |
| 土地面積 | 165.00㎡(49.91坪)※公簿 |
| 165.66㎡(50.11坪)※実測 | |
| 土地権利 | 所有権 |
| 地目 | 宅地 |
| 建物面積 | 105.57㎡(31.93坪) |
| 間取 | 3(4)LDK |
| 建築確認番号 | 第23UDI1C建02881号 |
| 建物構造 | 木造2階建て |
| 都市計画 | 市街化区域 |
| 用途地域 | 第一種低層住居専用地域 |
| 建ぺい率 | 40% |
| 容積率 | 80% |
| 他の制限 | 景観法・風致地区・宅地造成工事規制区域 |
| 接道状況 | 北東側約5.5m 公道に約9.0m接道 |
| 完成予定 | 2024年1月中旬 |
| 引渡時期 | 2024年1月中旬 |
| 設備 | 東京電力・都市ガス・公営水道・浄化槽 |
| 駐車場 | あり(2台分) |
ライフ・インフォメーション
| 【小学校】 国府台小学校 |
徒歩約8分(約660m) |
| 【中学校】 第一中学校 |
徒歩約19分(約1500m) |
| 【スーパー】 ヤオコー |
徒歩約13分(約1000m) |
| 【コンビニ】 セブンイレブン |
徒歩約5分(約400m) |
| 【郵便局】 市川中国分郵便局 |
徒歩約9分(約650m) |
| 【保育園】 中国分保育園 |
徒歩約7分(約550m) |
| 【幼稚園】 国府台文化幼稚園 |
徒歩約3分(約230m) |
| 【病院】 上田医院 |
徒歩約4分(約300m) |
| 【ドラッグストア】 ウエルシア |
徒歩約13分(約1000m) |
物件の特長
- 冬暖かく、夏涼しい 高気密住宅!
気密測定実施済 C値=0.4㎠/㎡
※C値は家全体でどれくらいの隙間があるかを測定した数値であり、小さいほど気密性が高くなります。一般的に1.0㎠/㎡を切るくらいの住宅であれば気密性が良い住宅とされています。 - カースペース並列2台分
- 設計住宅性能評価取得済み(耐震等級3、断熱等級5、一次エネルギー消費量等級6)
- フラット35S金利Aプラン利用可
- 2階リビングは天井高3M以上の勾配天井
- 天然木のフローリングを採用(1・2階共)
- 小上がりの和室には引出収納付き
- 浴室換気乾燥機、食洗機、ガス乾燥機(乾太くん)が標準装備
- テレワークにも利用できる3帖の書斎付
- ランドリースペース付
- ポケットキー付きの玄関ドアで開け閉めもラクラク!
- 外出時にも荷物を受け取れる宅配BOX付
- 奥行き2M超の大型バルコニー
取引態様
売主
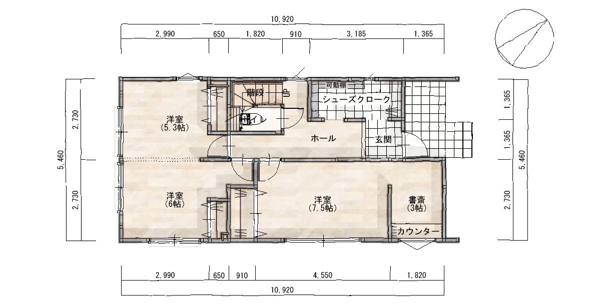
1階平面プラン

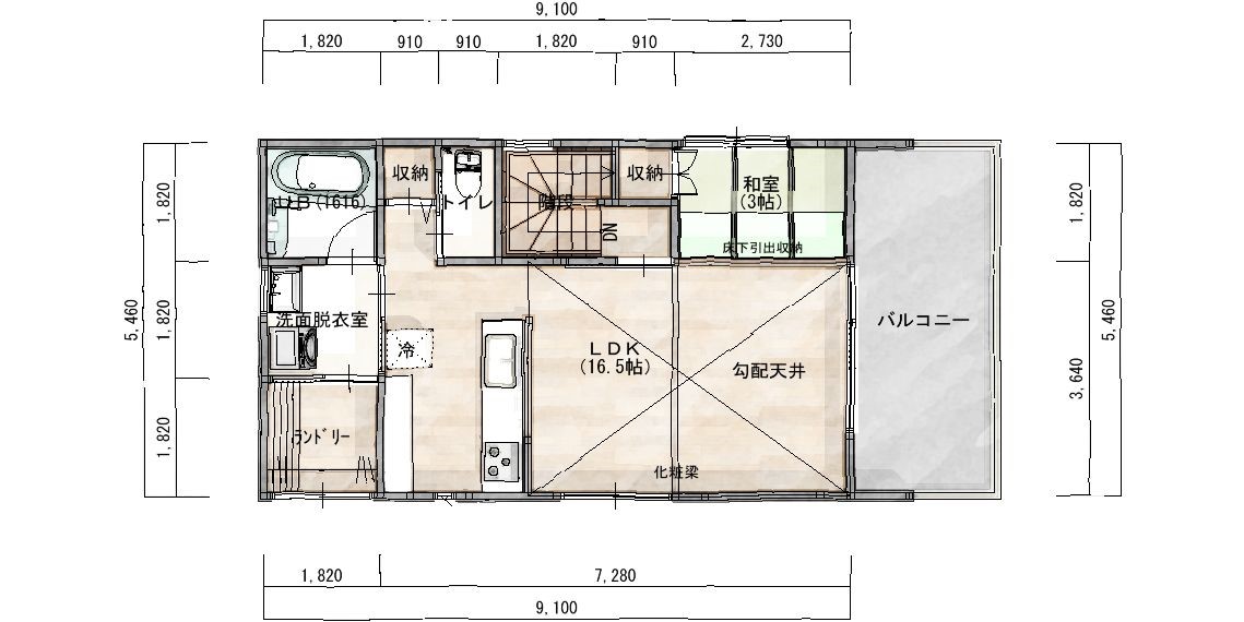
2階平面プラン

案内図

「詳細を知りたい」
「DAISHUに興味がある」
「建売住宅を探している」など…
どうぞお気軽にお問合せ下さい。
フリーダイヤル 0120-844-200
担当:長沢が承ります。

