一軒家に住むような二世帯住宅(平面分離型プラン)

コンセプト
親世帯のご希望(50歳代ご夫妻)
お互いの趣味や室内のインテリア・生活スタイルに干渉しない暮らしがいい。
でもまったく子供達に会わない生活はさびしい。毎日挨拶は交わしたい。
子世帯のご希望(25歳代ご夫婦・子供0歳)
これから子育てが始まる中、親世帯が1階、子世帯が2階の間取りでは親世帯に騒音などで迷惑をかけると思う。
気兼ねのない一軒家のような生活がしたい。
上下階の生活音の問題から、マンションから戸建てを希望される方も少なくありません。
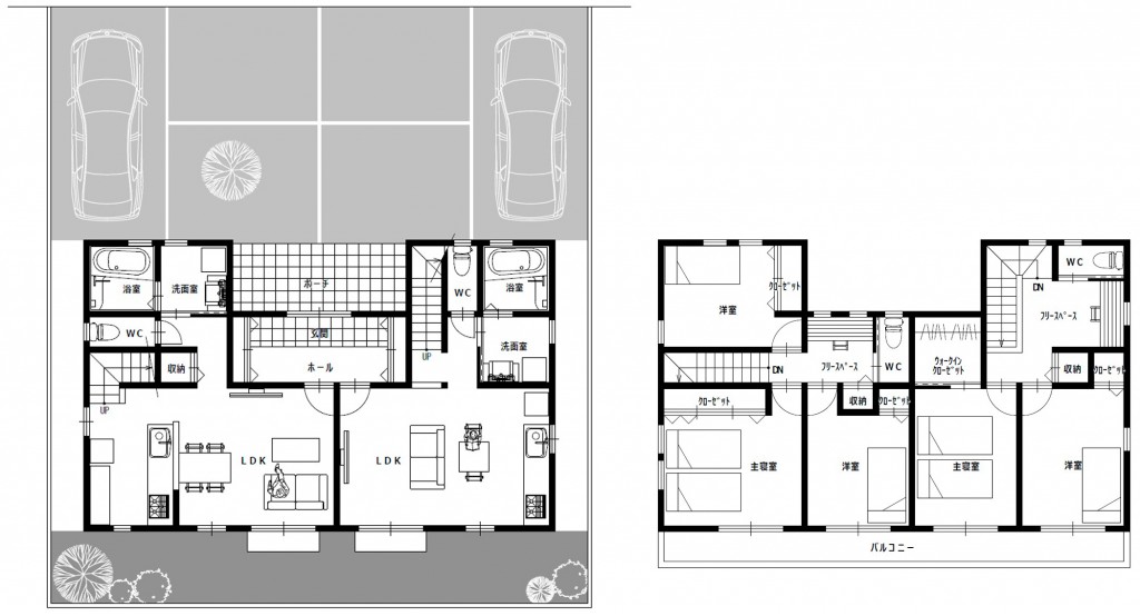
二世帯住宅の場合、1階が親世帯の生活空間の割合がほとんどですが、この平面分離型プランは、親世帯・子世帯の住居を左右隣り合わせに配置する間取りです。
二世帯住宅の場合、1階が親世帯の生活空間の割合がほとんどですが、この平面分離型プランは、親世帯・子世帯の住居を左右隣り合わせに配置する間取りです。
建物は1棟(ひとむね)で造られていますが各住居それぞれに2階部分を持つので、両世帯お互いに気兼ねせず生活でき、さらに玄関を1つにすることで屋外にでることなく、お互いの居室に行き来できます。
将来的には、各住居にそれぞれ玄関をもうけて賃貸にすることも可能です。
間取りプラン

① 両世帯をつなぐ玄関
各住居が玄関でつながる間取りです。両方の世帯が出入りしやすいよう両開き戸にし、多くの靴や荷物が収納できる広々した玄関にしました。
② 平面分類型間取り
1軒屋が隣り合わせになったような配置なので、水回り・居室等は完全分離になっています。室内のインテリアや家具もそれぞれの趣味が活かせるので、かなり干渉度の低い二世帯住宅と言えます。
プラン概要
| 1F: | 77.84㎡ | (23.54坪) | |
| 2F: | 77.84㎡ | (23.54坪) | |
| 延べ面積: | 155.68㎡ | (47.08坪) | |
| バルコニー: | 10.76㎡ | (3.25坪) | |
| 収納: | 11.73㎡ | (3.54坪) | |
| 親世帯: | 72.87㎡ | (22.04坪) | |
| 子世帯: | 82.81㎡ | (25.05坪) |




