2部屋→広々1部屋へ リノベーション工事@市川市①
こんにちは、工事部の木村です。
大変うれしいことに新築工事現場近隣にお住まいの方からお問い合わせをいただき、9月からリノベーション工事を行っています。第一弾でキッチンのリフォーム工事が完了しています。
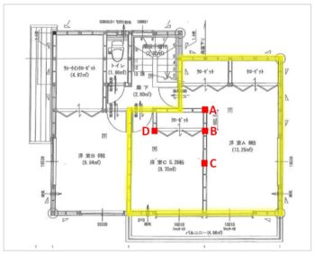
そのときに2階の間取りについて相談を受けました。2階には洋室が3部屋ありますが、そのうち2部屋を広々とした1部屋にしたい、というご要望でした。
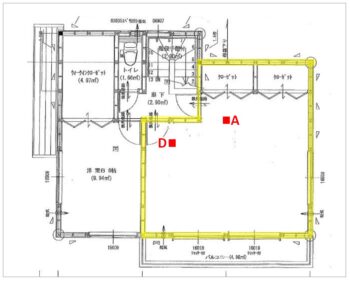
図面を確認したところ、筋交いが無い事になっていますが、ご要望の通りの全ての壁を撤去する事は出来ないことがわかりました。間仕切り壁内に3本=下記図面内A、B、Cの柱があり、梁補強により2本は抜けるがAは残さないと小屋組(屋根組)が保たないのです。
「Aの柱は抜く事はできませんが、壁とクローゼットは小屋組の梁補強をする事で解体が可能です。Dの柱は抜けると思いますが小屋組を確認しないと判断できません。その他フローリングを現状の床に上張りする事により、廊下と段差が生じてしまいます。」
と説明し、ご了承いただきました。その他以前から防犯上気になっていた1階のサッシに、面格子を付ける内容も加えて、お見積りを提出。即答に近い形でご契約希望のお返事いただきました。
大工さんの確保が難しい時期だったので、お客様には工事の開始をお待たせしましたが、その間フローリングのサンプルをお持ちして色決めを行ったり、資材手配を進めました。
いよいよ工事が始まり、解体予定の壁周囲の天井を一部解体し、図面通りに筋交いが本当に無いのか、柱は抜いて大丈夫か等の確認をしました。梁補強をしないとB、Cの柱が抜けないため、天井がフラットにならないこと、Dが抜けない柱だとわかりました。
お客様には、内装を工夫することで目立たなくなりそうだし、見た目よりも必要な補強をして安心できる家になるほうがいいから、と仰っていただきました。
このリノベーション工事については、また次回のブログに続けます。




